根據《中華人民共和國環境影響評價法》、《規劃環境影響評價條例》、《環境影響評價公眾參與暫行辦法》,為推進和規范舟山航空產業園控制性詳細規劃環境影響評價活動中的公眾參與,了解公眾對該規劃建設的態度和環境保護方面的意見及建議,現將舟山航空產業園控制性詳細規劃環境影響評價向社會進行第一次環境信息公示,公示內容如下:
(一)規劃概況
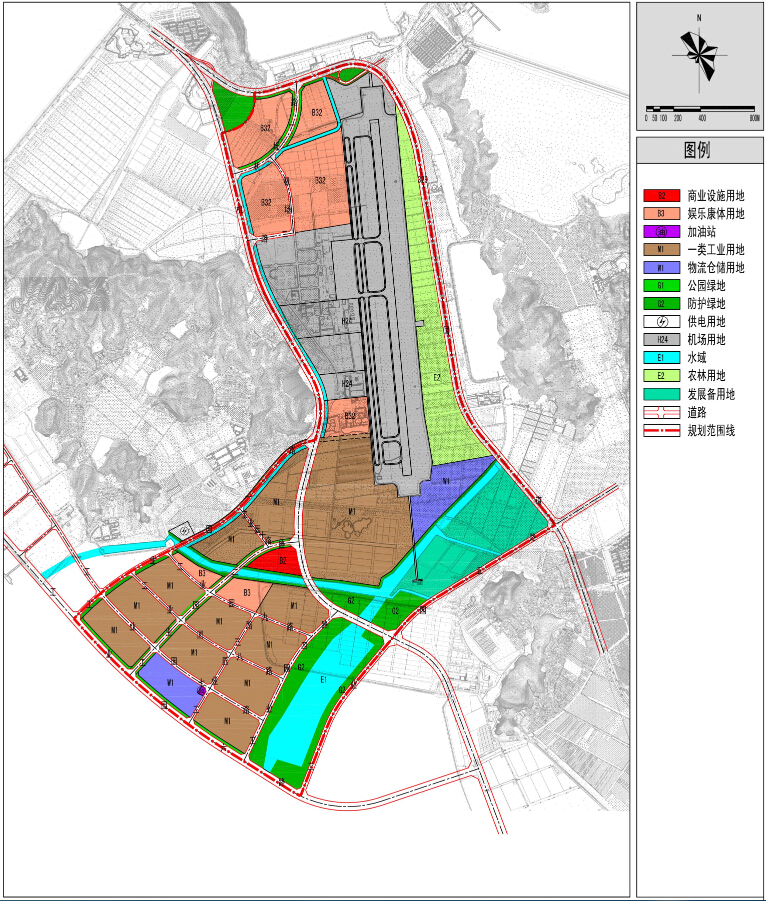
規劃定位:我國民用航空制造新增長極、舟山新區的特色產業區。重點發展航空制造產業、擴大發展運營保障產業,構筑兩大功能板塊。
規劃范圍:東起329國道,西至機場路-工業園一路,北起329國道北線,南至工業園六路-工業園五路-朱漳線,總規劃面積約801.32公頃。
總體布局:該片區總體上形成“兩核兩帶”的規劃結構。兩核為航空運營核心和航空制造核心,兩帶為產業發展帶和生態綠帶。
航空運營核心:以舟山機場為中心,打造通航運營和民航運營兩大功能核心,發展民航運營以及通航培訓,海監等通航作業功能。
航空制造核心:以干線飛機制造和通用飛機制造為核心。以干線飛機制造重大項目落地為龍頭,重點發展干線飛機制造、水上飛機制造、直升機制造、固定翼通用飛機等通用航空制造業。
產業發展帶:以機場路為連接軸,形成航空產業發展帶,向北發展航空運營產業,向南發展航空制造產業。
生態綠化帶:結合石榴江片區的水系以及兩側生態綠地,打造園區內生態綠化帶。

圖1 舟山航空產業園用地布局規劃圖 圖2 舟山航空產業園規劃結構圖
(二)環境影響評價主要工作內容
評價單位將以環評導則為依據,結合規劃的內容和特點,研究本規劃的環境制約因素,預測評價規劃實施以后對大氣環境、水環境、聲環境、生態等產生的影響,分析區域資源環境稟賦對規劃活動的承載能力,并提出環境影響減緩措施。最后,基于以上分析,從規模、結構、布局等方面對本規劃進行綜合論證,并提出規劃的優化調整建議。
(三)征求公眾意見的主要事項
征求公眾對規劃建設區域環境質量現狀、規劃實施可能的環境影響、污染防治措施及其他環境保護方面的意見和建議。主要內容包括:目前規劃區域及周邊環境狀況及主要存在的環境問題,從環境角度考慮,對規劃實施支持與否的態度,對舟山航空產業園區環境保護工作的建議等。
(四)建設單位名稱與聯系方式
單位名稱:舟山航空產業園建設指揮部
單位地址:舟山市普陀區朱家尖
聯 系 人:鐘工
Email:798989564@qq.com
聯系電話:0580-6636527
傳真:0580-6635231
(五)評價單位名稱與聯系方式
單位名稱:中國航空規劃設計研究總院有限公司
單位地址:北京市西城區德外大街12號
聯 系 人:劉工
Email:avichuanping@126.com(注明:舟山航空產業園規劃環評)
聯系電話:010-62037563
傳真:010-62039517
(六)公眾提出意見的主要方式
可通過電子郵件、傳真、電話、信件、來訪等方式與建設單位或環境影響評價機構聯系,反映自己對于該規劃實施及環評工作的意見和建議。
(七)公示有效期
本公告有效期自發布之日起10個工作日內。公眾提出意見的起止時間是:2016年1月15日~2016年1月29日。
單位:舟山航空產業園建設指揮部
時間:2016年1月15日





